
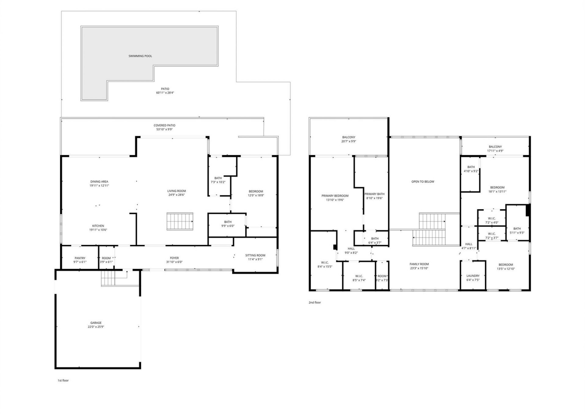
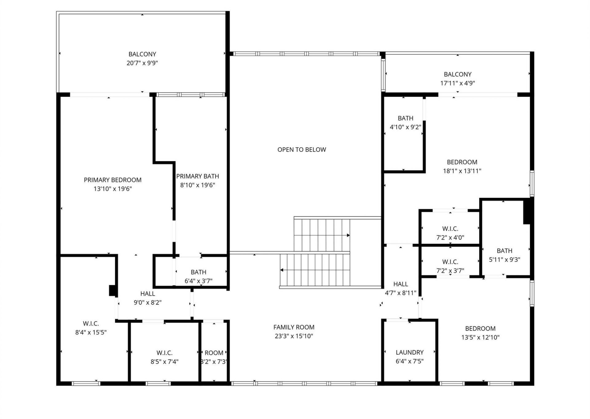
An architectural statement of modern waterfront luxury, this 2024 new construction residence sits on one of Rio Vista's most prestigious addresses. Offering 3,819 SF, the home features 4 bedrooms plus a den and 5 baths, Beachwood flooring, and floor-to-ceiling tiled bathrooms. The chef's kitchen includes Wolf & Sub-Zero appliances, custom cabinetry, oversized pantry, and Gessi fixtures. Built with non-wood construction and metal trusses for durability and low maintenance. Enjoy 75' of waterfront...An architectural statement of modern waterfront luxury, this 2024 new construction residence sits on one of Rio Vista's most prestigious addresses. Offering 3,819 SF, the home features 4 bedrooms plus a den and 5 baths, Beachwood flooring, and floor-to-ceiling tiled bathrooms. The chef's kitchen includes Wolf & Sub-Zero appliances, custom cabinetry, oversized pantry, and Gessi fixtures. Built with non-wood construction and metal trusses for durability and low maintenance. Enjoy 75' of waterfront with fixed bridges that can accommodate up to 32' boar with Bimini top, impact windows, tiled terraces, a heated automated saltwater pool & spa, tropical landscaping, 2.5-car garage, EV charger, and a prime location minutes to the beach, yacht club, downtown, and airport.
View MoreCourtesy of
Agency Name: RWE Real Estate Services
Agency Phone: 954-861-0008
Agent Name: Robert W Eldredge
Presented by
Agency Title: The Keyes Company
Agency Phone:
Request Info
Send an email with a link to
823 Ponce De Leon Drive, Fort Lauderdale, FL 33316.
Email 823 Ponce De Leon Drive, Fort Lauderdale, FL 33316
Thank you for your inquiry! As a thank you, we have a Special Mortgage Offer for You.
We would like to provide you a free, no-obligation, home loan pre-approval review.